Дмитрий Погодин о работе архитектора и создании уютного, гармоничного пространства, где каждый элемент служит своей цели и создает атмосферу кофейни у дома с вкусными завтраками и десертами.

Основная идея Locals — это не безумие форм или броский дизайн, а внимание к простым, но важным деталям. Пространство говорит само за себя через выбор форм, материалов, цветовой палитры. Locals — это проект, позволяющий взглянуть на архитектуру с точки зрения ее базовых принципов, привнося в жизнь человека ощущение простоты и уюта, сочетая их с функциональностью и современными решениями. Я мыслю цифрами и стремлюсь привести дизайн, процесс создания нового объекта, к чему-то структурированному, определенному, понятному. И хотя я не могу определить свой подход как математический, я сформулировал несколько базовых принципов, которые помогают мне в работе.
Работа с пространством
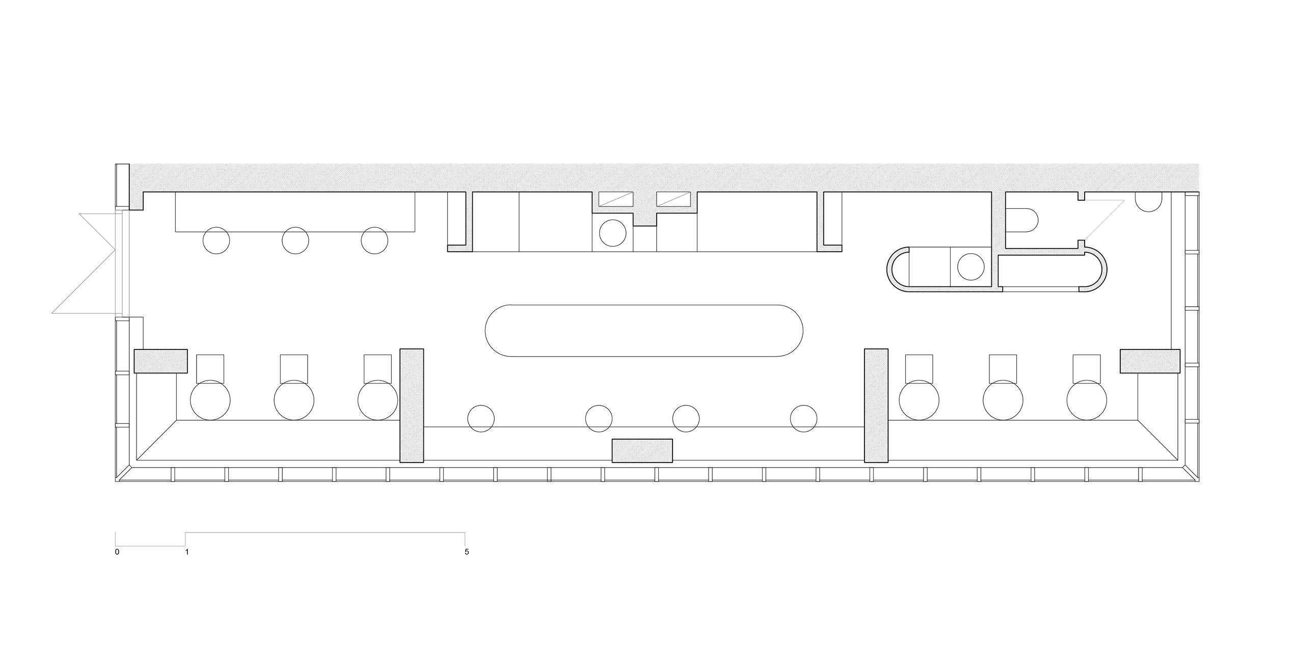
Работу над проектом я всегда начинаю с тщательного анализа пространства. Для меня важно «услышать» его, понять, что оно мне предлагает. Я намечаю основные оси, видовые точки, функциональные зоны. Пространство так или иначе диктует правила, и я работаю методом исключения, накладывая на план ограничения-рамки, начиная с габаритов оборудования и заканчивая количеством посадочных мест. Так, вытянутое узкое помещение кафе определило линейное расположение функций, а большие панорамные окна спровоцировали разместить рядом с ними посадочные места. Симметрия исходного плана определила расположение основных зон: центральная часть отведена рассадке гостей, кофейному бару и кухне, а вдоль стен размещены дополнительные технические зоны: входная группа, санузел, подсобка.

Колорит и материалы
Материалы для меня — это не просто визуальные элементы, а инструменты, с помощью которых можно подчеркивать формы и исправлять недостатки пространства. Например, в помещении существовали два крупных монолитных пилона, которые «съедали» пространство и заметно его утяжеляли. Мы решили «растворить» их, сделав зеркальными, что не только спасло пространство, но и позволило создать интересные визуальные эффекты, добавив игру отражений и света. Возникла иллюзия бесконечной скамьи, которая стала одним из смысловых акцентов интерьера.




Также мы хотели добиться максимальной естественности в интерьере, выделив цветом лишь одну стену и добавив колористические акценты с помощью мебели. Например, цвет скамьи задан материалом — это обработанный МДФ, покрытый лаком, что идеально соответствует нашей концепции простоты и лаконичности. Его дополнили белоснежные столики и барная стойка, отделанная белой глянцевой плиткой.
Так как Locals позиционирует себя как кофейня на каждый день, мы хотели, чтобы пространство не утомляло, а было комфортным. Для этого мы использовали нейтральные теплые цвета и работали с различными материалами и текстурами: бетоном, фактурной поверхностью, глянцевой плиткой, подчеркивающей округлые формы за счет бликов света.


Сочетание объемов
Основа архитектурного подхода — работа с формой. Это, к слову, отличный способ сделать интересное пространство в рамках ограниченных средств. Для каждой функции в пространстве нами был выделен свой объем. Открытая кухня получила свой «выступающий» объем в центре с нишами для оборудования и хранения. Так как заказчикам было важно отделить зону мойки от готовки, мы сделали еще два контрастных по форме объема: один для кофейного бара, второй — для мойки, подсобного помещения и санузла.
Скамьи и другие предметы мебели подбирались с учетом строгой формы и характера линий, которые должны были объединить пространство.
Центральным элементом интерьера стало большое сферическое зеркало «для селфи», которое цитируется обратными отражателями на лампочках и органично соединяет в себе все элементы дизайна.
Концепция
Когда я задумывался о концепции, мне вспомнилась атмосфера двора и тех мест, где можно было спрятаться от городской суеты, где люди знали друг друга и чувствовали себя «своими». Именно эта атмосфера легкости и теплоты стала основой концепции Locals.
