DO buro представили серию модульных домов — современную интерпретацию образа русской избы, в которой традиционная форма сочетается с prefab-производством и натуральными материалами. Проект воплощает идею компактного, теплого и открытого природе жилья, которое собирается на участке за несколько часов.

Образ, выросший из традиции
В основе архитектурного облика — узнаваемый силуэт русской избы: простая двускатная форма, натуральные материалы, ощущение камерности и защищенности.
Команда бюро стремилась переосмыслить архетип, сохранив главное, — образ теплого дома, который формируется через дерево, свет и ясную организацию пространства.

«Когда мы начали работу над домом, у нас было четкое убеждение, что путь с наличниками, резьбой и буквальными отсылками к традиционной избе нам не близок. Мы не хотели работать с русской темой через прямое цитирование декоративных элементов и узнаваемых исторических приемов: такой подход часто сводится к стилизации, приводит к неоправданному удорожанию проекта и плохо работает в рамках модульного производства.
Нам было важно найти более сдержанную и, в каком-то смысле, более честную трактовку. В итоге мы оттолкнулись от того, что считаем самым ценным в типологии избы, — от печи. Мы долго искали ее пропорции и место в доме. И уже потом начали выстраивать остальное пространство», — архитектор, сооснователь DO buro Александр Казаченко.

Prefab-производство и модульный подход
Работа с модульными домами всегда связана с ограничениями: размеры производственного цеха, транспортные габариты, логистика. В проекте архитекторы изначально приняли эти ограничения как исходную данность и попытались выстроить систему, которая будет работать на образ проекта.
Полноценным модулем стал мокрый блок — он изготавливается на заводе целиком и имеет фиксированный размер. Все остальное пространство собирается вокруг него уже на участке из prefab-панелей. Такая схема принципиально отличается от подхода, при котором дом состоит из нескольких цельных модулей, соединяемых между собой. Именно это решение дало больше свободы: более комфортные для жизни размеры помещений, высокие потолки, гибкость планировок. В рамках стандартных транспортировочных габаритов, например, было бы невозможно вынести печь в отдельный объем.
Сегодня линейка домов охватывает широкий диапазон форматов: от компактных домов площадью около 35 м², в том числе ориентированных на B2B-сценарии, до домов площадью 90, 120 м² и более. В перспективе бюро рассматривает развитие домов площадью 200–250 м² и дальше — до 300–350 м². Такое масштабирование стало возможным именно благодаря тому, что архитектурная и конструктивная логика была выстроена и отработана на раннем этапе.
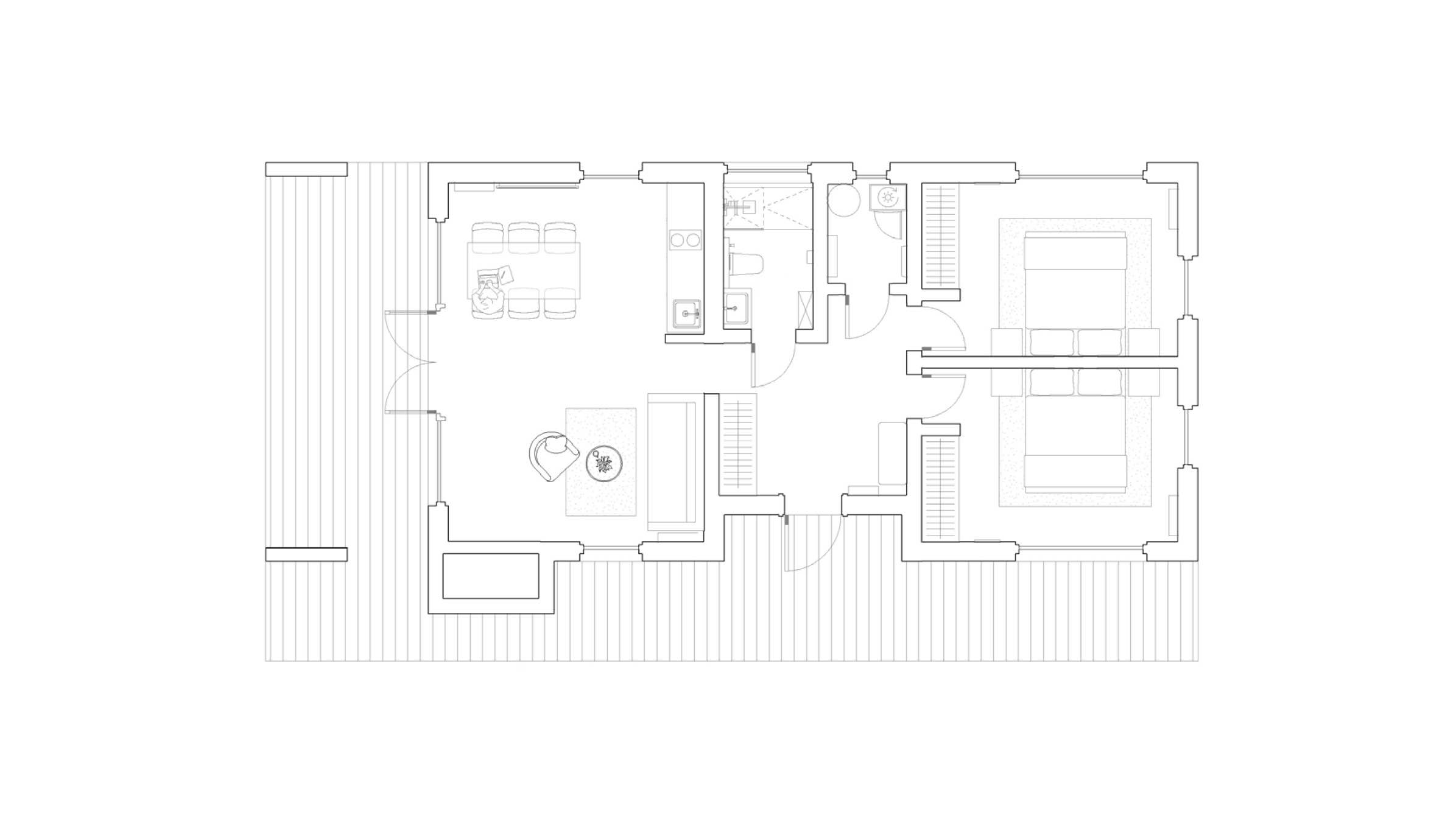
Планировка, выстроенная вокруг печи
Как и в традиционной избе печь становится сердцем дома. Она не только задает атмосферу, но и определяет композицию интерьера. Вокруг нее формируются основные зоны: гостиная, кухня, приватные спальни.

Гостиная открывается на летнюю террасу, создавая естественный переход из дома в сад. Спальные комнаты расположены глубже, отделены функциональным блоком и остаются тихими и приватными.


Открытость природе
Большие окна — важная часть концепции. В отличие от традиционных изб с небольшими проемами, дом стремится максимально открыть вид на окружающий ландшафт и впустить много света.
