
Архитектурное бюро KEMELIN PARTNERS реализовало для компании STONE центральный офис продаж площадью 700 м². Архитекторы спроектировали пространство, призванное отразить ценности и принципы бренда. Результатом стало интерьерное решение в стиле мягкого минимализма, где уделено внимание гармонии, практичности и принципам вневременного дизайна.
Дизайн-концепция проекта
Цель проекта — создание современного многофункционального офисного пространства, отражающего идентичность бренда. Новый объект призван сформировать первое впечатление о компании и продемонстрировать клиентам масштаб, высокий уровень строительства и ключевые ценности застройщика.
Задачей для архитекторов стало воплощение новой стратегии заказчика — объединение под одной крышей двух различных направлений бизнеса: жилой и коммерческой недвижимости. Ранее каждое из направлений существовало в собственном автономном офисе с индивидуальным дизайном и атмосферой. Решение об объединении предопределило подход к планировочным решениям, общий архитектурный облик, а также повлияло на выбор материалов и предметное наполнение интерьера.

Эстетика офисного пространства выстроена на принципах простоты, света и качества материалов. В основе архитектурного решения — чистота линий и объемов. Интерьер раскрывается через обилие воздуха и естественного света, льющегося через панорамные окна. Освещение играет одну из ключевых ролей в работе с пространством, он оживляет интерьер и подчеркивает текстуру материалов.
Цветовая палитра сдержанная, почти монохромная. Практически все поверхности покрыты единой базой: декоративной штукатуркой с легкой текстурированной поверхностью. Полы, ресепшн из фактурного травертина вторят нейтральному оттенку стен и добавляют тепла, контрастируя с холодным блеском металлических поверхностей. Этот проект — исследование того, как пространство может быть одновременно функциональным и созерцательным. Архитекторы стремились создать атмосферу, где можно сосредоточиться, быть готовым принять решение и одновременно вдохновиться.
Подход KEMELIN PARTNERS
Приступая к проекту, бюро уделяет важную роль диалогу с клиентом. Важным этапом работы является способность понимать цели клиента, иметь возможность погрузиться в реальные потребности, услышать, что успешно работает в организации предыдущих офисов, а что требует улучшения. Так формулируется клиентский путь и создается авторское динамичное пространство, способное повысить операционную эффективность.
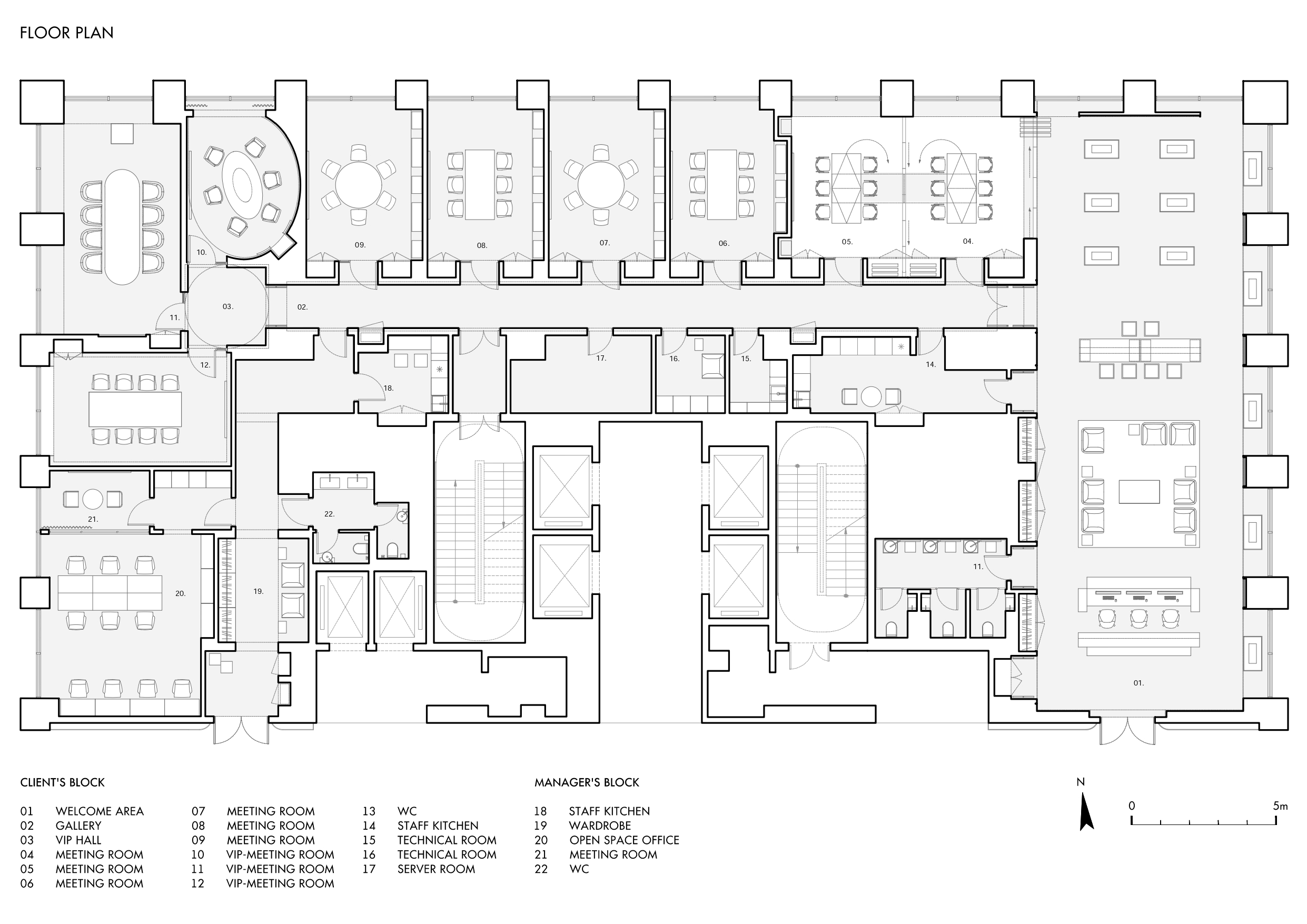
Планировка
В процессе проектирования офис приобрел многофункциональность: помимо welcome-зоны, стандартных и VIP-переговорных в проекте появились бизнес-гостиная, зоны для клиентских мероприятий, кейтеринга, лекций и выставок. Ввиду ограниченной площади разместить все это стало настоящим вызовом для архитекторов.
Клиентский путь предусматривает разделение потоков посетителей и сотрудников. Офис имеет два отдельных входа: слева — главная приемная зона для гостей, справа — вход для персонала, здесь размещены все необходимые служебные помещения: open space для менеджеров, зона отдыха, туалеты, кухня и технические помещения.

Клиентская welcome-зона интегрирована в единое, свободное и многофункциональное пространство с зонированием только с помощью мебели. Такое гибкое решение подходит для различных сценариев использования, а также масштабное репрезентативное пространство укореняет у гостей впечатление о девелоперской компании как о лидере рынка.
Архитекторы стремились спроектировать пространство адаптивным. Например, трансформировать шоурум в площадку для мероприятий позволяют раздвижные перегородки: с их помощью можно объединить основное помещение с переговорными, где при необходимости размещается кейтеринг. Одновременно сложным и эффектным местом в зонировании стал коридор, вдоль которого размещены девять переговорных. Уйти от коридорной системы ввиду особенностей плана было невозможно. Поэтому единственной возможностью гармонизировать пространство был поиск подходящего дизайн-решения. Чтобы визуально сократить длину, архитекторы предложили разделить коридор на две зоны: квадратный холл для входа в премиум-переговорные и коридор для стандартный кабинетов. Вдоль окон размещены все необходимые переговорные, с глухой стороны коридора расположены технические помещения.
Выделенный квадратный холл с круглым потолком стал центральным элементом премиальной части офиса. Парящий круг, вписанный в квадрат, — оммаж к палладианской коннотации, к которому авторы регулярно обращаются в своем творчестве. Так архитекторы отражают свою страсть к чистой геометрии и равновесию пропорций. Для усиления пластики потолка добавлен световой акцент — скрытая подсветка по периметру круга. Архитекторы продолжили игру с геометрией и придали протяженного коридору форму свода. Рассеянное освещение подчеркивает тектонику свода и коридор из утилитарной транзитной зоны преображается в стройную анфиладу.

Welcome-зона
Традиционная схема организации приемной зоны была переосмыслена. Вместо классического размещения стойки ресепшн напротив входа была разработана последовательность пространственных впечатлений. Войдя, посетитель сталкивается с визуальным акцентом — подвесной конструкцией с логотипом компании и каменным постаментом с миниатюрными макетами, внимание на которых акцентировано точечной подсветкой. Здесь сотрудник встречает гостя и направляет в гостиную, где открывается вся перспектива пространства.


Переговорные
В офисе продаж предусмотрено девять переговорных разного формата: типовые, трансформируемые с возможностью объединения и три особые VIP-комнаты. Назначение индивидуальных переговорных — возможность удивить взыскательных клиентов. Каждая из комнат обладает отличительным характером. Архитекторы предложили обновление сервисной модели, при которой компания демонстрирует персонализированное обслуживание. Например, бронирование переговорной под клиента, ориентируясь на вкусы и предпочтения постоянных покупателей или предоставление гостю возможности самостоятельно выбрать кабинет для проведения переговоров. Проекты KEMELIN PARTNERS обращаются к чувствам пользователей, к состоянию, в котором человек пребывает в спроектированном пространстве. Пример такого подхода — три нестандартные комнаты для переговоров. Контрастная смена пространства в момент перехода из аскетичного коридора в интерьер переговорной воздействует на эмоциональное восприятие, усиливает эффект первого впечатления и рождает приятное чувство уже знакомого, близкого по духу места. В основу дизайна переговорных легли образы кабинетов разных эпох, каждый из которых несет свои культурные и эмоциональные коды. Эстетика одной из переговорных переосмысливает приемы Mid-Century Modern 1950-х годов. Здесь используются натуральные материалы, текстильные стеновые панели, травертин в отделке откосов и пола. Во второй переговорной синтезированы образы 1970-х годов и дух японского минимализма. Переосмыслены характерные приемы: футуристические мотивы, сочетание холодного металла с бархатом коврового покрытия, смелые цветовые акценты. Внимание привлекает нестандартное решение стен в виде ярусной конструкции с отделкой под бетон. Строгая геометрия придает помещению строгий характер. Минимализм японских мотивов апеллирует к созерцательности и глубине.


Третья переговорная — это история с отсылкой к классическим кабинетам руководителей, где обилие натурального дерева символизирует статус и надежность. Помещение полуовальной формы располагает к мягкой доверительной атмосфере. В отделке стен использованы премиальные породы дерева, такие как венге и эвкалипт. Темная колористика придает интерьеру глубину. На полу — плоское ковровое покрытие с сизалевым плетением. В центре — массивный деревянный стол, окруженный креслами в премиальной белоснежной обивке. Здесь будут проводить сделки по жилой недвижимости.

Бизнес-гостиная
Приветственная зона оснащена общим рабочим столом, аналогом бизнес-гостиных и зон фриворкинга, где клиенты компании могут поработать за ноутбуком или организовать кофе-брейк. Это пространство — важная составляющая сервисной модели, способ проявить заботу о будущих резидентах и возможность продемонстрировать потенциал недвижимости.

Материалы и стилистика
Для KEMELIN PARTNERS выбор материалов — один из самых ответственных этапов проектирования. Основной инструментарий — долговечные износостойкие материалы, устойчивые к интенсивной эксплуатации. Через высокий уровень детализации, сложность решений и обилие натуральных материалов авторы демонстрируют принадлежность к премиальному сегменту. В палитру материалов вошли натуральный камень, зеркала, металл, тканевые панели, пластик, декоративная штукатурка, натуральное дерево, лакированные панели. Интерьер получился строгим, функциональным и детализированным. Монохромная нейтральная колористика связывает зоны, обеспечивая целостность восприятия, что способствует расслаблению и комфорту гостей компании. Открытая планировка и минималистичная отделка усиливают ощущение простора, позволяя пространству «дышать». Зеркала и лакированные поверхности отражают свет, визуально расширяя пространство.



Световой дизайн
Для бюро свет является частью архитектуры. Благодаря планировочным решениям и синтезу искусственного и дневного света пространство непрерывно преображается в течение дня. Архитекторы предложили несколько сценариев освещения: интерьер раскрывается по-разному в зависимости от выбора типа и уровня освещенности. Например, внимание на пьедесталах с макетами сфокусировано акцентными источниками, а для проведения мероприятий используется равномерное комфортное освещение. Другой пример — протяженный коридор. Несколько сценариев освещения, рассчитанных на разное время суток, призваны разбить коридор на части, сделав его визуально более коротким. Подсветка свода подчеркивает архитектурный замысел и зрительно увеличивает высоту помещения.


Акценты офисного пространства, мебель и навигация
В проекте реализованы digital-решения, которые отражают инновационный подход и создают комфортную атмосферу для взаимодействия с клиентами. Примером служат LED-экраны, установленные в торце помещения и на колоннах вдоль окон. На экранах демонстрируются визуализации, интерактивные планы этажей, а также рекламные видеоролики объектов недвижимости. Бюро использовало стандартные, но проверенные решения для контроля за основными функциями офиса: автоматизированы шторы, внедрены системы управления освещением и климат-контроль.
Специально для офиса была разработана авторская мебель. Созданы как встроенные, так и отдельно стоящие изделия: от тканевых панелей для стен и трансформируемых перегородок до дверей, раковин и элементов индивидуального дизайна.
Главное пространство офиса делится на функциональные зоны только при помощи мебели, поэтому предметному дизайну было отведено особое внимание.



Мебель массивная, строгая, отвечающая современным стандартам эргономики и оснащения. Раздвижные перегородки созданы по эскизам архитекторов и являются частью основного офисного пространства.
Для своих проектов бюро стремится разрабатывать индивидуальную инфографику, отражающую голос бренда клиента и концептуальную логику проекта. В офисе продаж навигация выполняет не только практическую, но и декоративную функцию: черные минималистичные пиктограммы эффектно контрастируют с гладкими оштукатуренными стенами, являясь финальным завершающим штрихом.



Архитекторы бюро реализовали поэтапное погружение в атмосферу компании STONE. Внимание к деталям и выверенные пропорции создают атмосферу спокойствия и концентрации, отражая философию долговечности и вневременной актуальности.
Офис стал тщательно продуманной средой, в которой форма следует за функцией, а эстетика подчинена логике и чистоте.