Президентский лицей «Сириус» на одноименной федеральной территории в Сочи следует принципам устойчивого развития, включает работу с сейсмически активными условиями местности и социо-культурным контекстом и является примером создания условий, необходимых для раскрытия потенциала человека.
О деталях нового объекта рассказали основатели, главные архитекторы мастерской и авторы исследования «Архитектура развития. Методология проектирования современных школ» Антон Надточий и Вера Бутко, а также Анастасия Галуткина, главный архитектор проекта.

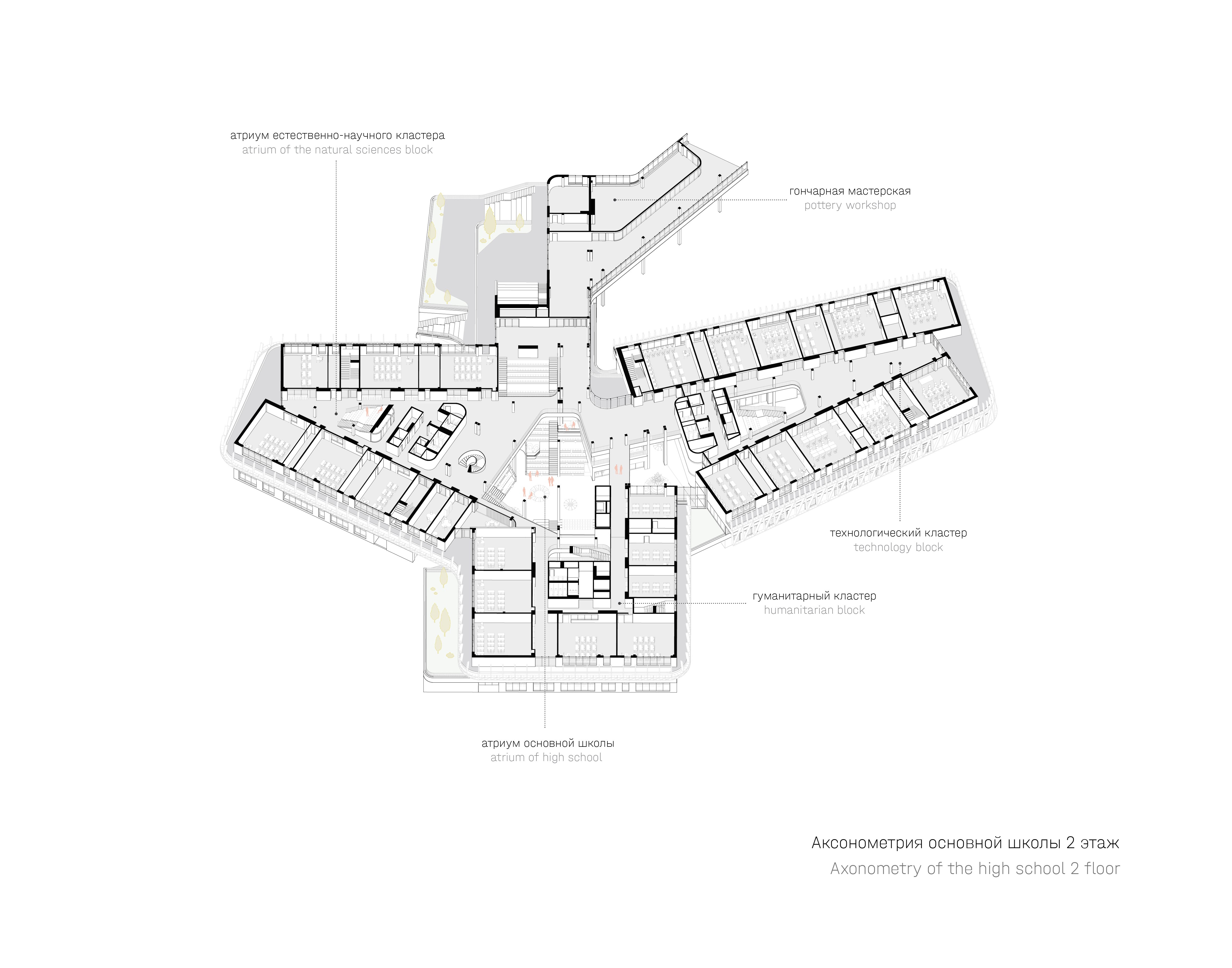
Комплекс площадью 5,8 га, располагающийся на участке довольно вытянутой формы, станет частью формирующегося научно-образовательного кластера и будет включать детский сад, школу, творческие лаборатории и спортивную инфраструктуру. Архитектура задана кластерной структурой: крупный объем разделен на более мелкие функциональные блоки, устроенные в единую систему по принципам пространственной сложности, визуальной открытости и разнообразия типологий.
Антон Надточий и Вера Бутко считают, что такая система, выбранная взамен многофункциональной «коробки», позволит создать условия, где человек будет чувствовать себя комфортно: «Такая среда провоцирует другую модель поведения, а через это формирует другой тип личности».

Каждый функциональный блок комплекса (детский сад, рассчитанный на 320 детей, начальная и основная школа, вмещающая на 2500 учеников, технологические и творческие лаборатории, спортивная инфраструктура) задан как самостоятельная единица с собственным ритмом и ориентацией на конкретные задачи и потребности учащихся. Вместе они образуют единую систему с продуманной логистикой и гибкой программой взаимодействия. Такое пространственное решение позволяет воспринимать «Сириус» как «мини-город», пространство со своими улицами, площадями, террасами и форумами, где маршрут — это сценарий, а переход — форма социализации.


Общественные зоны комплекса связаны переходами и открыты через пешеходные маршруты для всех жителей федеральной территории. Благодаря этому кампус становится активным общественным пространством с постоянной событийной жизнью — своего рода «урбанистическим симулятором», который, согласно идее авторов, будет ненавязчиво формировать у детей навыки самостоятельного и осмысленного взаимодействия с городской средой.

В «Сириусе» архитектура учитывает не только функциональные сценарии, но и природные риски. Сейсмостойкие конструкции, рассчитанные на нагрузку до 9 баллов, и выверенное поднятие уровня застройки образуют защиту от подтоплений и других катаклизмов, формируя каркас, устойчивый к экстремальным условиям.


При этом пространство не замыкается в бетонной оболочке. Также особенности проекта учитывают анализ ветровых потоков и условий комфортного пребывания человека на открытых площадках, поэтому каждый функциональный блок обладает своей климатической ориентацией. Такое решение повышает энергоэффективность здания, снижает тепловую нагрузку, обеспечивает инсоляционную оптимальность и открывает возможность для естественной вентиляции, что напрямую влияет на комфорт учебного процесса.

Ландшафтная организация, устроенная по принципу модульной системы с многочисленными террасами и зеленой кровлей, сглаживают грань между современной архитектурой и флорой соседнего орнитологического парка, формируя альтернативные точки притяжения, способные конкурировать с традиционной партой. Так, помимо эстетического удовольствия, реализация устойчивой связи с внешней средой закрепляет когнитивные и физиологические реакции учащихся, предлагая им самостоятельно наблюдать за экосистемами, редкими растениями и животными. Архитектурный образ здания напоминает очертания горных хребтов Краснодарского края, окружающие Имеретинскую низменность, а террасы вдохновлены зелеными холмами, спускающимися к побережью Черного моря.



«Амбиция сделать лучшую школу России подтолкнула нас к поиску передовых инструментов, способных организовать гибкую образовательную модель, в которой пространство подстраивается под человека, а не наоборот. Учебные блоки не закреплены за одной функцией, а собраны вокруг общих зон, многосветных атриумов, в которых формируется культура самостоятельного поиска, работы в команде и коллективной ответственности. Так, конференц-зал на 800 мест спроектирован с отдельным входом, благодаря чему может работать независимо от основного режима школы, превращая кампус в гибридную институцию — не только образовательную, но и культурную, публичную. Подобное архитектурное решение способствует последующему развитию внутренних сообществ, что является ключевым фактором стимуляции социальной интеграции и творческого взаимодействия учащихся для крупных образовательных центров», — отмечает Анастасия Галуткина.


Архитектура «Сириуса», сконцентрированная на повседневных практиках и актуальных социальных и экологических вызовах, демонстрирует не столько образ будущего, сколько рабочую модель настоящего, способную стать катализатором развития всего региона, укрепляя его позиции как перспективного центра науки, технологий и образования.


Комплекс вошел в шорт-лист WAF Future Projects — Education
Команда проекта: Антон Надточий, Вера Бутко, Петр Алимов, Анна Воробьёва, Анастасия Галуткина, Артем Карпец, Екатерина Котлова, Ольга Ефимова, Ольга Козак, Диана Мингазова, Яна Ошкина, Иван Хрипков, Никита Рыбин, Юрий Уйманов, Юлия Мазурова, Альмира Шагиахметова