Современная архитектура стремится формировать особый пространственный опыт, создавая диалог между человеком и средой. Проект виллы в Подмосковье от архитектурного бюро ABOVE — о балансе, в котором монументальность бетона соединяется с тактильной теплотой дерева, а строгая геометрия взаимодействует с природным ландшафтом. Никита Лесников, партнер архитектурного бюро ABOVE, раскрыл детали проекта.

Проект виллы, бюро ABOVE

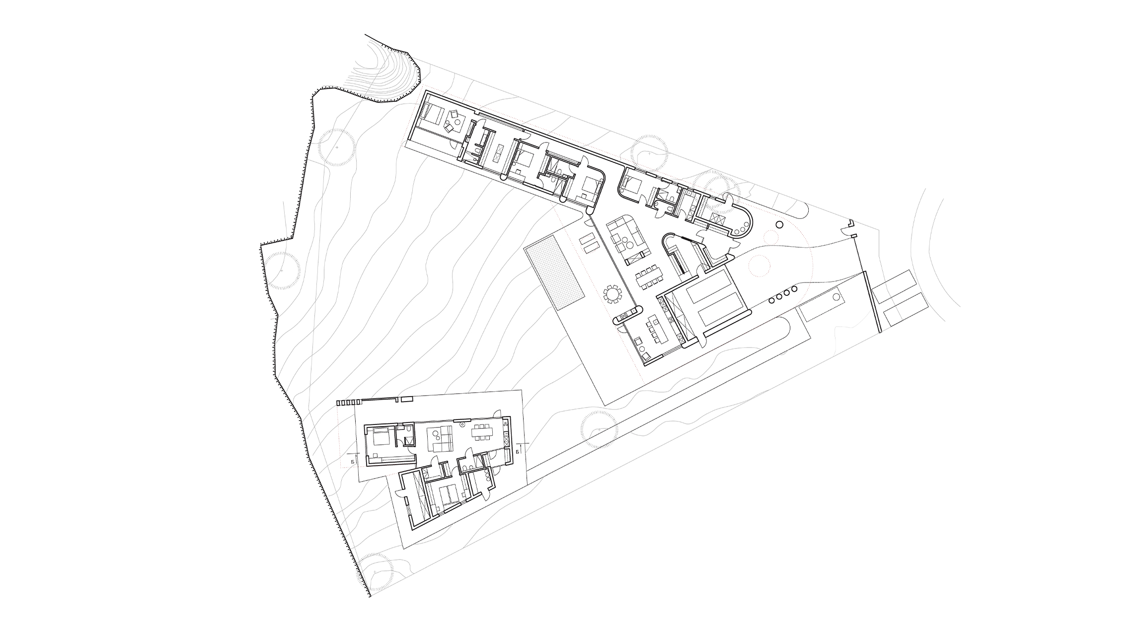
Комплекс был возведен на сложном участке треугольной формы, располагающимся на склоне. Мы постарались сохранить особенности участка и учесть его геометрию, разместив два объёма таким образом, чтобы сохранить ландшафт. По просьбе заказчика гостевой дом задуман как временная постройка, поэтому спроектирован компактным и экономичным.

Генеральный план участка с расположением зданий

Главный дом из монолитного бетона символизирует устойчивость и долговечность. Его строгие, графичные линии подчеркивают тектоничность архитектуры. При этом здание не выглядит массивным — консольные конструкции, выступающие над ландшафтом, создают ощущение невесомости.

Гостевой дом, напротив, выполнен из массива дерева по технологии CLT (кросс-ламинированная древесина). Это решение не только подчеркивает природную эстетику, но и создает контраст с бетонным объемом. Здесь архитектура словно раскрывается навстречу окружающему пейзажу, его мягкости и изменчивости.

Визуализация главного и гостевого домов, подчеркивающая контраст материалов

Архитектура проекта — это исследование материала и его возможностей. Бетонный объем с консольным выносом словно парит над оврагом. Крупные плоскости стен, широкая бетонная терраса и ряд толстых колонн собирают детали дома в цельный архитектурный объект. Форма гостевого дома более многослойна: его объем варьируется за счет усеченных плоскостей и смещений, формируя динамичное восприятие в зависимости от точки обзора. Протяженные свесы кровли призваны усилить чувство защищенности. Несмотря на различия между холодным бетоном и древесиной, оба дома транслируют теплоту пространства для жизни. Их фасады раскрывают потенциал выбранных материалов. В бетонном доме текстура опалубки оставляет следы, подчеркивающие честность и брутальность конструкции. В деревянном доме панели CLT демонстрируют естественную текстуру древесины, которая со временем будет стареть, придавая строению дополнительную выразительность.

Детали фасадов с текстурами бетона и древесины

Расположение зданий на участке продиктовано ориентацией по сторонам света. Вход организован в той точке, где сходятся две линии треугольника участка, создавая ось симметрии, ведущую к главному дому. Участок расширяется к реке, где открывается панорамный вид на воду. Архитектура комплекса при этом остается скрытой от посторонних глаз. Большие окна ориентированы так, чтобы впускать максимум естественного света. Конфигурация домов и жилых комнат, обращенных внутрь участка, призвана создать пространство интеракции для обитателей дома. Центральной точкой притяжения стала терраса с уличной кухней и просторная гостиная главного дома.

Внутренние пространства организованы таким образом, чтобы подчеркнуть архитектурную концепцию баланса: бетонный дом — более интровертный, с четкими зонированиями, а деревянный — более открытый, с плавными переходами между помещениями. Интерьеры минималистичны, но при этом не выглядят холодными. Натуральные материалы, тактильные поверхности и световые сценарии создают ощущение спокойствия и гармонии.

Видеопортрет

Ландшафтный дизайн дополняет архитектуру. Вокруг зданий созданы зеленые зоны, являющиеся естественным продолжением окружающей природы. Дорожки, ведущие к дому, спроектированы таким образом, чтобы ритмично повторять линии фасадов, усиливая общую концепцию динамики. При этом сами материалы дворовых пространств — камень, гравий, дерево — подчеркивают контраст бетона и древесины в архитектуре.

Проект виллы — это архитектура, которая бережно учитывает как природный контекст, так и потребности будущих жильцов. Он тонко вписан в рельеф, подчеркивая его естественную пластику. Это архитектурный ансамбль, который не только отвечает практическим задачам, но и создаёт особую атмосферу — спокойную, естественную, живую.