Международный архитектурный конкурс, инициированный сицилийским природным заповедником Пунта Бьянка и муниципалитетом Агридженто, посвящен преобразованию руины в туристический центр для посетителей. Главное условие, предъявляемое конкурсантам, — усилить культурную и историческую идентичность места, а также сохранить его тонкую связь с ландшафтом. Сергей Сенкевич, главный архитектор и партнер бюро APEX, рассказал о новом конкурсном объекте бюро.

Изначально здание таможни, расположенное на сицилийском побережье, служило границей — физической и правовой линией контроля. В проекте мы предложили переосмыслить понятие границы не как барьера или линии разделения, а как места встречи и столкновения: прошлого с будущим, человека с природой, функции со смыслом.

Нам предстояла работа со зданием, пережившим смену эпох и политических режимов и ставшим главным свидетелем истории этих мест. Отказавшись от реконструкции и перестройки в пользу «позиции невмешательства», мы работали с тем, что сохранилось от руины, как с полноправным материалом.

Концепция проекта основана на идее архитектурного расслоения времени, где каждый фасад фиксирует одно из возможных состояний объекта:
- Прошлое как забвение. Собранный из обвалившихся кирпичей, разрушенный фрагмент фасада, демонстрирует, каким здание стало бы, если бы про него забыли;
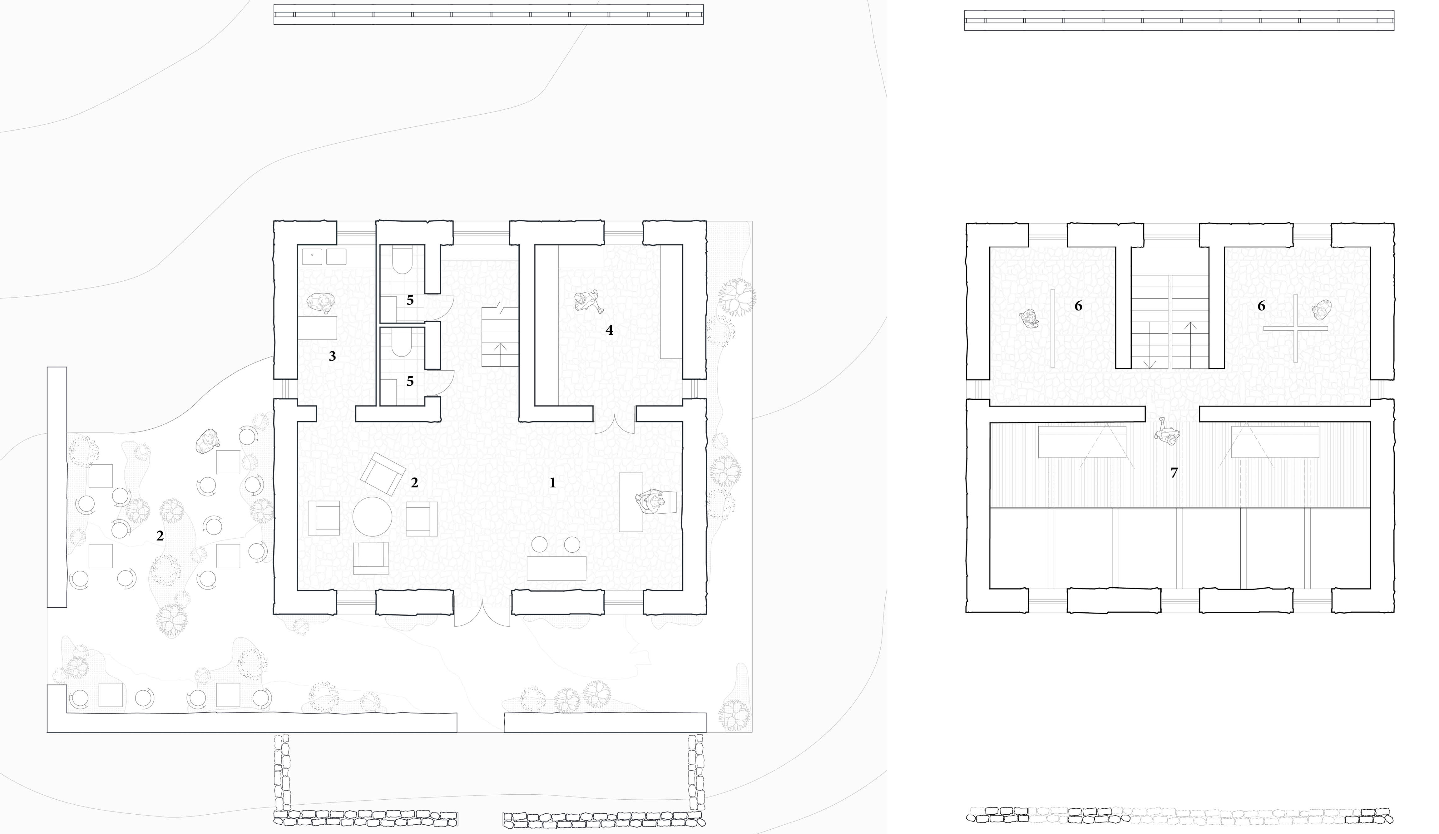
- Настоящее как сохранение. Центральная часть — сохраненное здание руины, внутрь которого деликатно вписывается функция туристического центра. На первом этаже располагается зона приема с местом для отдыха и компактным сувенирным магазином. На втором — гибкое многофункциональное пространство для выставок и проведения культурных мероприятий;
- Будущее как переосмысление. Стеклянная, почти невесомая интерпретация оригинального фасада, показывает, как память может принимать новые формы, сохраняя очертания, но не повторяя буквально.

Расслоение фасадов разворачивается вдоль траектории движения солнца: от прошлого к будущему — от запада к востоку. В закатные часы, когда солнечный свет проходит через круглые отверстия в стенах, возникает световая линия, объединяющая все три состояния – архитектурная ось времени, пронзающая пространство.

Это был осознанный риск: отказ от демонстративной реконструкции в пользу глубокой концепции, основанной на минимальном, но осмысленном вмешательстве. Для нас было принципиально не превращать руину только в туристический центр: новая функция встраивается в проект, но не подчиняет его. Здание сохраняет свою автономность как главный герой, способный говорить от своего имени. И именно такой подход получил признание. Проект был отмечен жюри золотой рекомендацией (Golden Mention): «Дерзкое и концептуально обоснованное решение. Проект представлен очень хорошо, он предлагает решения для интеграции с окружающей средой, сохраняя при этом уже существующую красоту» (Анна Паула Виккерт, жюри конкурса Punta Bianca Visitor Center).
Этот проект не просто «новая жизнь» для руины. Он — признание ее ценности, как самостоятельного «мыслящего» элемента, наблюдателя и свидетеля времени.

Новая функция центра важна. Но основная суть проекта в том, чтобы здание сохранило собственный смысл, а не превратилось в «очищенный туристический объект». Иногда важно почувствовать разницу между тем, что можно изменить, и тем, к чему вовсе не стоит прикасаться. Не исправлять, не достраивать, не придумывать заново — сделать шаг назад, и позволить месту говорить самому за себя.